HOME
CONTACT
STUART EMMONS
BUILDING PROJECTS
PLANNING PROJECTS
EMMONS DESIGN
HOMELESSNESS
HOUSING
NORTH COAST
VISIONS AND PLANS
SCHOOLS
Living
Living
Kitchen
Bath
Floor Plan
<
>
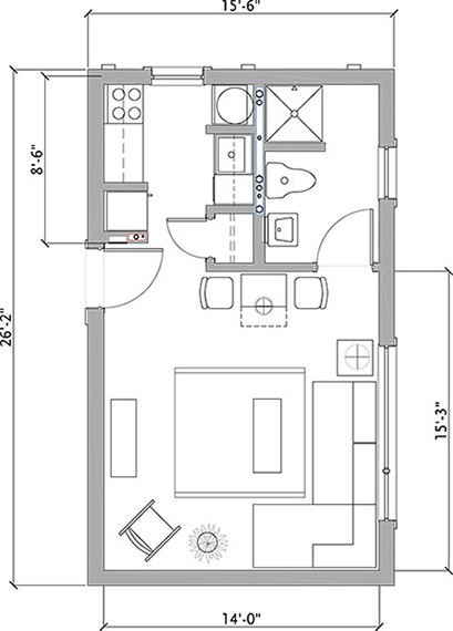
Kah San Studio
The Kah San Studio is a modular 375 SF unit made up of one module. The Studio is designed for people experiencing homelessness as well as other types of residents. The 15 x 14 foot living area has a kitchen and bathroom alongside in separate areas. There is much natural light and cross ventilation. The unit’s mini-split heat pump system provides very efficient heating and cooling.
Studio kitchens are designed with a full range of equipment as well as a washer/dryer. They are efficiently designed to maximize storage and usability. A full meal for a group can easily be made here.
Eagle Creek,
Columbia Gorge,
Oregon